260㎡大平层
------------------------------------
大平层在都市房产领域里稳占一席之地,
它凭借宽敞的居住空间,
全面且独立的功能分区,
以及城市核心优越的地段位置,
满足了都市精英对高品质生活的追求。
在此背景下,
与其相匹配的全屋高级定制顺势崛起,
它不仅致力于空间的极致探索,
更是将个性化美学与舒适度巧妙融合,
从每一个细节之处彰显不凡,
彰显对高品质生活的深刻诠释。
今天,小编将为您呈现信和家具高端定制系列,近期落地的一则经典大平层设计案例。邀您与信和家具一起,探究当下都市高端生活方式,揭秘如何将现代木作工艺与空间艺术完美融合,重塑生活美学,开启居家新篇章!
●●INFO
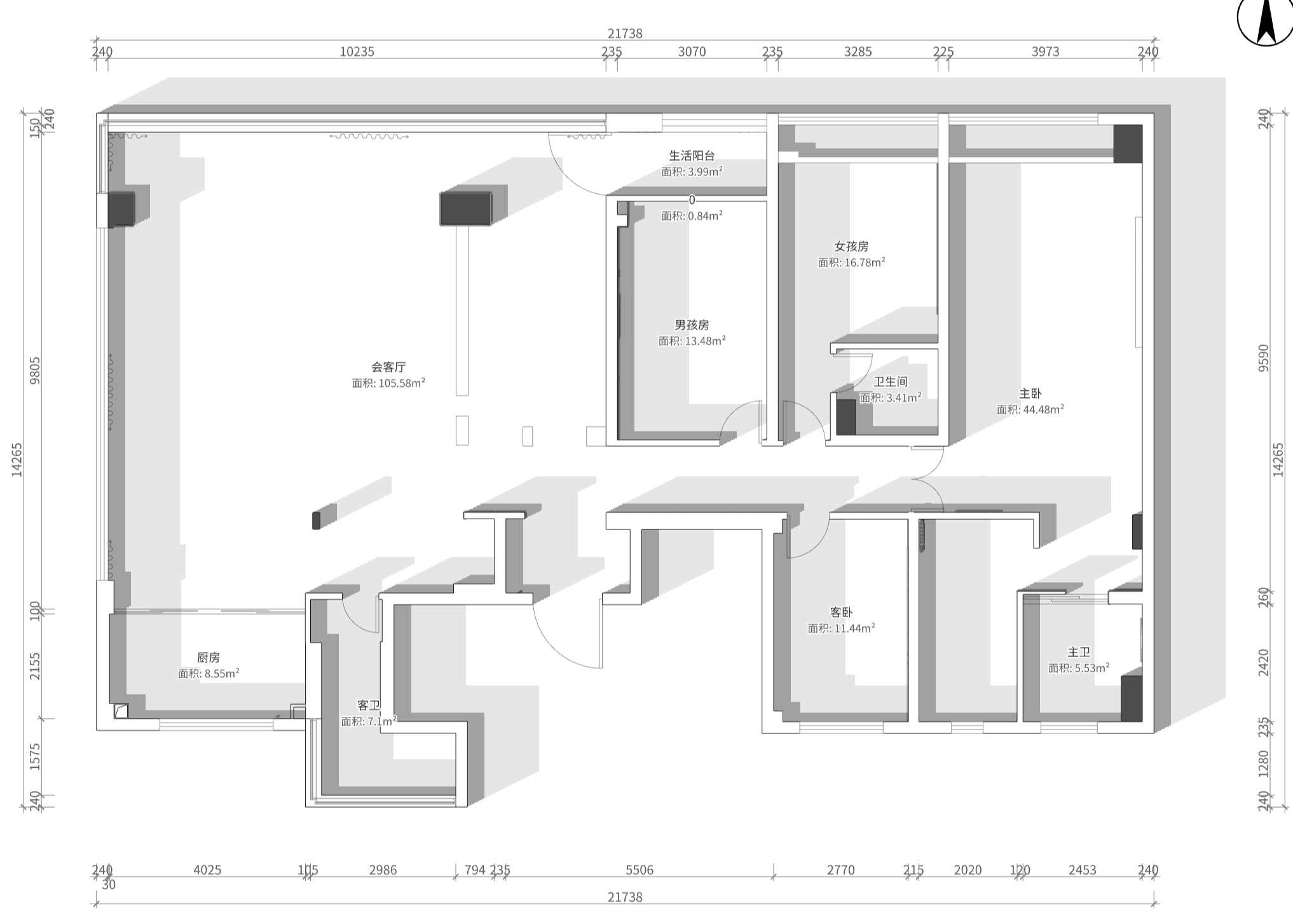
户型图

▲ 空间布局图

▲ 家具布局图
案例解析:本户型入户玄关、会客厅、餐厅、书房整体采用开放式布局,微空间增加了通透性和连贯性;公共区域的错层结构,为其功能做一个基础的划分,让每个区域都呈现出不同的层次,打破大空间单调的视觉效果,创造出更有层次和动感的空间体验,让空间不再是单一的静态的,而是呈现出更为动态和多维的特质。
●●PART.1
玄关设计
艺术与实用
完美邂逅

踏入家门的第一步,便是我们精心设计的入户玄关。采用夹吊工艺,将木质与石材、玻璃巧妙结合,既展现了材质的多样美感,又确保了空间的通透与明亮。入户左右两侧,多功能储藏柜的设计,不仅让玄关区域更加整洁有序,也为您的归家之路增添了一份仪式感。

●●PART.2
客厅设计
720°无遮挡视野
都市观景盛宴

客厅作为家的核心区域,设计师进行了大胆而创新的改造。将原本的720°阳台划归到室内,改造为观景落地窗,城市的繁华与自然的宁静即刻尽收眼底。设计师巧妙地将室内原有承重结构柱用黑胡桃饰面装饰,并与石材、木作巧妙衔接组合,形成隔断式影视墙,不仅提升了空间的质感与档次,更将自然元素与现代美学巧妙融合。


●●PART.3
餐厨设计
美食与空间的碰撞
中国人的饮食喜欢爆炒,厨房运用隐形联动门+极窄金属边框柜体相结合的设计,巧妙解决了厨房油烟、空间收纳的难题。同时,即使处于关闭状态,也能保持餐厅和厨房之间的视觉连通性,使空间显得更加宽敞明亮。

●●PART.4
书房设计
灵感与创意的空间
开放式书房与客厅连接,以大面积的自然采光和通透设计激发无限创意。书柜采用阿姆霍特榆木柜体+极窄金属边框玻璃门+嵌入式触摸感应LED灯带构成,可错落有致地陈列着书籍与艺术品,彰显主人的文化底蕴。


●●PART.5
主卧设计
尊享私属领域
奢华与实用并重
步入主卧,高定木作的温润质感与极简线条交织,营造出一种低调而奢华的氛围。定制金属玻璃隔断让主卧空间既分隔有序又通透明亮,柔和的圆弧造型,更为主卧空间增添了现代感和艺术气息。



步入式衣帽间,采用进口实木框架+极窄金属玻璃柜门+通顶柜门构成,内嵌感应式LED灯带。搭配意大利意卡油漆的细腻涂装,不仅环保健康,更让空间色彩历久弥新。德国海福乐五金件的运用,确保了衣柜门开合无声,每一次触碰都是对精致生活的致敬。
●●PART.6
次卧设计
简约而不简单
宁静而已致远
两个次卧以简约美学为核心,墙面采用中性灰色布拉诺黛青+布拉诺经典驼色木饰面,营造出温馨而宁静的休憩环境。结合空间的使用需求,定制撞色书桌和悬吊式抽屉,时尚而又不失功能性。

▲ 模拟效果图

▲ 落地实景图


●●PART.7
女儿房设计
童真与梦幻的
完美结合
女儿房则是梦幻与实用的完美融合,粉嫩色调搭配布拉诺经典驼色,温婉俏皮又不失现代感。特别定制的飘窗字台与衣柜一体式延伸床头柜,边角进行圆润处理,既安全又实用。衣柜门采用镜面设计,扩大了视觉空间,每一处细节都体现了对小女孩细腻心思的呵护。



●●PART.8
室内门设计
日臻完善
颜值与实用兼具
信和家具定制室内门设计在材质与工艺、设计风格、功能特点以及定制服务等方面,经过多年的沉淀,已日趋成熟与完善。高级定制中的室内门设计,需融合精湛的工艺、与空间的适配性以及对细节的极致追求。采用优质原木,经过精细加工,展现出木作室内门的自然而又高级的质感。


线条流畅、造型简洁的室内门,不仅提升了家居空间的美观度和实用性,更彰显了主人的个性和品味。
信和家具-全屋高定系列,
为您打造的不仅仅是一个高品质的新家,
更是一种追求
健康、时尚、品质生活态度的体现。
重塑奢华定义,引领审美潮流,
让每一寸空间都满载‘爱的深度’,
呈现生活无尽韵味与魅力,
让家成为心灵真正的栖息地。
欢迎莅临信和家具各线下门店体验
开启专属您的理想生活新篇章



